بهترین ساختمانهای جدید در امارات متحده عربی
Creek Views by Iraz Developments
About project
Starting price:
Convert currency:
Creek Views by Iraz Developments — современный жилой проект в районе Al Jaddaf Waterfront вдоль Dubai Creek, предлагающий стильную и комфортную городскую жизнь у воды. Проект включает тщательно спланированное здание с подземной парковкой, граунд этажом, 14 жилыми этажами и крышей, где расположены разнообразные жилые единицы с панорамными видами на канал и зелёные пространства.


В комплексе представлены студии, квартиры с 1, 2 и 3 спальнями и просторные пентхаусы с современными, продуманными планировками и высококачественной отделкой. Интерьеры создают ощущение света и простора, а большие окна обеспечивают естественное освещение и живописные виды.
Жизнь здесь дополнена набором удобств для активного и сбалансированного образа жизни: бассейн, тренажёрный зал, благоустроенные прогулочные зоны, беговые дорожки и ландшафтные территории для отдыха. Проект сочетает городской комфорт и прибрежную атмосферу, делая его привлекательным как для проживания, так и для инвестиций.

Amenities
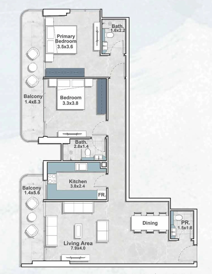
Layouts
About district

Al Jaddaf Waterfront
Creek Views расположен в Al Jaddaf Waterfront — престижной прибрежной части Дубая с живописными набережными, зелёными зонами и развитой городской инфраструктурой. Район сочетает спокойную прибрежную атмосферу с удобным доступом к Downtown Dubai, международному аэропорту и ключевым районам города. Рядом с комплексом есть магазины, рестораны, медицинские и образовательные учреждения. Отличное транспортное сообщение и близость к станции метро делают район удобным для проживания и инвестиций.
About developer

Iraz Developments
Проект реализуется компанией Iraz Developments, девелопером с фокусом на современных премиальных жилых комплексах в Дубае. Компания сочетает высокое качество строительства, современный дизайн и функциональные планировки, создавая привлекательные объекты для жизни и инвестиций.


